静岡県浜松市で、小さなリフォームから大きなリノベーションまで。確かな技術と信頼であなたの想いをカタチにします。

静岡県浜松市で、小さなリフォームから大きなリノベーションまで。 
確かな技術と信頼であなたの想いをカタチにします。

浜松市東区 事務所棟を住宅棟にリノベーション
(2021年4月~6月)

その1 1階の洋室のリフォーム

 浜松市東区で、社業を終了するのにあたり今までの住宅を解体して、事務所棟だった所を住宅棟に作り変える、リノベーション・大規模リフォームをしました。1回目は1階の18.5帖の事務室を寝室とリビングにする、洋室のリフォームのご紹介です。

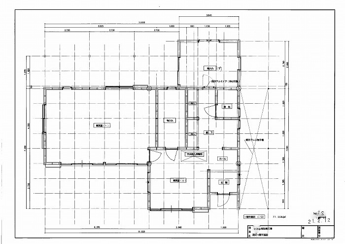
リノベーション前の事務所棟1階の平面図

リノベーション・大規模リフォーム前の現状1階平面図

住宅にリノベーション後の1階平面図

リノベーション・大規模リフォーム後の1階平面図

❖❖❖

リフォーム前の1階の事務室

リフォーム前の18.5帖の事務室。書庫が3面にぐるりとありました。

事務室を洋室(寝室)にリフォーム中

書庫などをすべて撤去して、寝室のクローゼットを作っている、リフォーム中の元の事務室。

事務室が寝室とリビングになったリフォーム後

中央を半分に4本引き込み戸で仕切って寝室とリビングになった、リフォーム後の元事務室。

 

❖❖❖

リフォーム前の事務室と掃き出しサッシ

リフォーム前の事務室の掃き出しサッシ。間口1.5間×2の大きな窓でしたので取り外して間口1間×2の断熱サッシに取り替えます。

リフォーム後のリビング・寝室と掃き出しサッシ

リフォーム後の、リビングと寝室と掃き出しサッシ。予定では二部屋とも寝室にするつもりでしたが、とりあえずリビングとして使ってみるそうです。

 ここではご紹介しませんが、1階にあるもう一つの8帖の事務室2はやはり掃き出しサッシを取り替え、二連のルーバー窓は引き違いサッシに取り替えています。

 このような大きな部屋を二つの部屋に作り替える洋室のリフォームも、リフォーム経験豊富な優れた腕の社員の大工や職人スタッフが揃っている、浜松市のリフォーム専門の工務店「優建築工房」なら、施工実績が豊富なため安心してお任せいただけます。お気軽にお問い合わせください。

お問い合わせは → こちら

その他の洋室などのリフォーム施工事例はこちら

 

その2 階段の新設リフォーム

 浜松市東区の、社業を終了するのにあたり今までの住宅を解体して、事務所棟だった所を住宅棟に作り変える、リノベーション・大規模リフォームの2回目は、2階を物入として使っていたため昇り降りに収納式のタラップしかなく、今度は居室にするため新しく玄関ホールに階段を作る、階段のリフォームのご紹介です。

今まで2階の昇り降り用に付いていた、収納式のタラップ。こんどは2階を居室にリフォームするので、さすがにこれでは不便ですね。

玄関を入った正面ホールのリフォーム前の状態。キッチンスペースと奥がトイレ。このキッチンの目隠し壁の所を階段の上り口にします。

ほとんど解体した階段の新設リフォーム中の玄関ホール。

階段の新設リフォーム後の玄関ホール。スリッパの置いてある所が玄関の上り口。

❖❖❖

階段の新設リフォーム前の2階の物入

階段の新設リフォーム前の、物入となっていた2階の部屋。

2階の床を開口した階段の新設リフォーム中

そこを解体して床を開口した、階段の新設リフォーム中。

2階の床を開口した階段の新設リフォーム中

階段の新設リフォーム中

新しく柱を入れて階段を組んでいる、リフォーム中。

階段の新設リフォーム中

耐震と手すりの下地を兼ねて、ボードの下に合板を張っています。

2階から見た階段の新設リフォーム後

手すりも付いた、階段の新設リフォーム後。下は玄関ホール。

❖❖❖

リノベーション前の事務所棟2階の平面図

現状2階平面図 (3).jpg

リノベーション後の2階の平面図

2階施工図 (4).jpg

 このようなむつかしい階段の新設リフォームも、リフォーム経験豊富な優れた腕の社員の大工や職人スタッフが揃っている、浜松市のリフォーム専門の工務店「優建築工房」なら、施工実績が豊富なため安心してお任せいただけます。お気軽にお問い合わせください。

お問い合わせは → こちら

 

その3 2階の洋室のリフォーム

 浜松市東区の、社業を終了するのにあたり今までの住宅を解体して、事務所棟だった所を住宅棟に作り変える、リノベーション・大規模リフォームの3回目は、物置になっている2階を、窓は断熱サッシに取り替え居室と納戸に作り変える、洋室のリフォームのご紹介です。

リフォーム前の物置になっている2階の洋室

リフォーム前の2階の状態。物置部屋になっていました。奥のサッシは物干し場への出入口。これはそのまま残します。

壁・床などを解体したリフォーム中の2階の洋室

リフォーム前の2階の状態。物置部屋になっていました。奥のサッシは物干し場への出入口。これはそのまま残します。

柱などを入れたリフォーム中の2階の洋室

新しく柱や断熱材などを入れて、階段を作っているところ。

 居室になったリフォーム後の二階の洋室

壁を作って洋室になった、リフォーム後の2階。壁ぼ向こう側が階段です。

❖❖❖

リフォーム前の物置になっている2階の洋室

リフォーム中の2階の洋室

居室と納戸(右側)になったリフォーム後の二階の洋室
リフォーム前の物置になっている2階の洋室

リフォーム中の2階の洋室

居室になったリフォーム後の二階の洋室

 このように内部を大幅に作り替える洋室のリフォームも、リフォーム経験豊富な優れた腕の社員の大工や職人スタッフが揃っている、浜松市のリフォーム専門の工務店「優建築工房」なら、施工実績が豊富なため安心してお任せいただけます。お気軽にお問い合わせください。

お問い合わせは → こちら

その他の洋室などのリフォーム施工事例はこちら

 

その4 玄関のリフォーム

 浜松市東区の、社業を終了するのにあたり今までの住宅を解体して、事務所棟だった所を住宅棟に作り変える、リノベーション・大規模リフォームの4回目は玄関ドアを取り替え、玄関回りを一新する、 玄関のリフォームのご紹介です。

リフォーム前の玄関ドアと玄関廻りの外観

リフォーム前の間口3尺の玄関ドアと玄関回りの外観。左に見える塗装がまだらになっているのは戸袋の鏡板です。

リフォーム中の玄関ドアと外観

左にあった袖壁を解体して間口4.5尺の断熱タイプの玄関ドアが付きました。

リフォーム後の玄関ドアと玄関廻りの外観

ドアホンと照明器具も取り替えてきれいになった、リフォーム後の玄関。

 このような玄関ドアを取り替えるなどの玄関のリフォームも、リフォーム経験豊富な優れた腕の大工が社員として在籍している浜松市のリフォーム専門の工務店「優建築工房」なら、施工実績が豊富なため安心してお任せいただけます。お気軽にお問い合わせください。

お問い合わせは → こちら

その他の玄関などのリフォーム施工事例はこちら

 

その5 外部・庭のリフォーム

 浜松市東区の、社業を終了するのにあたり今までの住宅を解体して、事務所棟だった所を住宅棟に作り変える、リノベーション・大規模リフォームの5回目は外壁の一部をサッシの取り替えのため張り替え、外部全体を塗装し直した、外壁など外部のリフォーム庭を駐車場に作り変えた、エクステリアのリフォームのご紹介です。

リフォーム前の外壁と庭の外観

リフォーム前の外観。サッシはすべて断熱サッシに取り替え、外部を補修後全面塗り直します。庭は植栽を撤去して駐車場に作り変えます。

リフォーム後の外壁と庭の外観
リフォーム後の駐車場になった庭

サッシを取り替え外壁を補修して全体を塗り直した、リフォーム後の外観。庭は全面砕石敷きの駐車場になりました。

 このような外部の塗り替えリフォームや庭を駐車場にするエクステリアのリフォームも、リフォーム経験豊富な優れた腕の社員の大工や職人スタッフが揃っている、浜松市のリフォーム専門の工務店「優建築工房」なら、施工実績が豊富なため安心してお任せいただけます。お気軽にお問い合わせください。

お問い合わせは → こちら

その他の外壁などのリフォーム施工事例はこちら

その他のエクステリアのリフォーム施工事例はこちら

 

その6 窓のリフォーム

 浜松市東区の、社業を終了するのにあたり今までの住宅を解体して、事務所棟だった所を住宅棟に作り変える、リノベーション・大規模リフォームの6回目は古い窓サッシを耐震性能の向上を考えたうえで断熱タイプの新しいサッシに取り替える、窓のリフォームのご紹介です。

窓の取り替えリフォーム前の外観

窓の取り替えリフォーム前の外観。1階の南面は耐震上不安な幅1.5間の大きな雨戸付きの掃き出しサッシが付いていました。

窓の取り替えリフォーム中

雨戸なしの幅1間の断熱サッシに取り替え、耐力壁を新設します。

窓の取り替えリフォーム後の外観

2階を含めたすべての窓を断熱サッシに取り替えた、リフォーム後の外観。1階南面には耐力壁を3ヶ所増設しています。

 ここ以外にも内部に柱を10本程度新たに入れて壁を作り、耐震性能の向上をはかっています。

 このような耐力壁を作りながら古いサッシを断熱サッシに取り替える窓のリフォームも、リフォーム経験豊富な優れた腕の社員の大工や職人スタッフが揃っている、浜松市のリフォーム専門の工務店「優建築工房」なら、施工実績が豊富なため安心してお任せいただけます。お気軽にお問い合わせください。

お問い合わせは → こちら

その他の窓などのリフォーム施工事例はこちら

 

その7 台所の新設リフォーム

 浜松市東区の、社業を終了するのにあたり今までの住宅を解体して、事務所棟だった所を住宅棟に作り変える、リノベーション・大規模リフォームの7回目は事務所のため湯沸かしスペースしかなかったので、物入だった所を台所に作り変える、台所の新設リフォームのご紹介です。

リノベーション前の事務所棟1階の水回り付近の拡大図

リノベーション前の現状1階の水回り付近の平面図

リノベーション後の住宅になった水回り付近の拡大図

リノベーション後の1階の水回り付近の平面図

❖❖❖

台所にリフォームする前の物入室

台所になるリフォーム前の物入室。左側の壁を解体して左に1.5尺広くし、耐力壁を作ります。窓はこのままの位置で断熱サッシに取り替えます。

解体した物入室のあたり

柱を残して解体している、リフォーム中の台所付近。手前の床を開口してある所は浴室になります。奥の根太が見えている所まで台所になります。

壁や天井を作っている台所のリフォーム中

新しい床・壁・天井を作っている、台所のリフォーム中。

システムキッチンが付いたリフォーム後の台所

システムキッチンとキッチンパネルが付いた、リフォーム後の台所。キッチンはクリナップ・ラクエラ    です。窓は上げ下げ窓に取り替えています。

カウンター収納が付いたリフォーム後の台所

反対側は同じ「ラクエラ」の家電収納付きのカウンター収納になります。奥の出っ張りは浴室です。

 このようにまったく違うところに台所を新設するリフォームも、リフォーム経験豊富な優れた腕の社員の大工や職人スタッフが揃っている、浜松市のリフォーム専門の工務店「優建築工房」なら、施工実績が豊富なため安心してお任せいただけます。お気軽にお問い合わせください。

お問い合わせは → こちら

その他の台所のリフォーム施工事例はこちら

その他のリノベーション・大規模リフォームの施工事例はこちら

 

その8 浴室の新設リフォーム

 浜松市東区の、社業を終了するのにあたり今までの住宅を解体して、事務所棟だった所を住宅棟に作り変える、リノベーション・大規模リフォームの8回目は事務所のため浴室がなかったので、押入や物入だった所をシステムバスの浴室に作り変える、浴室の新設リフォームのご紹介です。

浴室に新設リフォーム前の押入部

リフォーム前の、事務所棟の玄関を入った廊下の突き当り。左側が押入で浴室になり、右側はトイレですがこの廊下とトイレのスペースは洗面所になります。奥のドアの向こうは物入です。

解体して浴室に新設リフォーム中

解体して柱などを入れて間仕切りを作っている、浴室の新設リフォーム中。床のない所が浴室に、手前はトイレになります。奥の物入のドアは右に移動して再取り付けします。

ユニット(システム)バスの浴室に新設リフォーム後

1坪のシステムバスが入った、浴室の新設リフォーム後。当社お勧めの TOTO「サザナ」 です。

ユニット(システム)バスの浴室に新設リフォーム後

 このように内部を大幅に作り変えての浴室の新設リフォームも、リフォーム経験豊富な優れた腕の社員の大工や職人スタッフが揃っている、浜松市のリフォーム専門の工務店「優建築工房」なら、施工実績が豊富なため安心してお任せいただけます。お気軽にお問い合わせください。

お問い合わせは → こちら

その他の浴室のリフォーム施工事例はこちら

その他のリノベーション・大規模リフォームの施工事例はこちら

 

その9 洗面・洗濯・脱衣所の新設リフォーム

 浜松市東区の、社業を終了するのにあたり今までの住宅を解体して、事務所棟だった所を住宅棟に作り変える、リノベーション・大規模リフォームの9回目は事務所のため洗面所がなかったので、浴室を新設した横にあったトイレスペースを拡張して洗面・洗濯・脱衣所に作り変える、洗面所の新設リフォームのご紹介です。

洗面所にリフォームする前のトイレ

洗面・洗濯・脱衣所にリフォームする前の、トイレ部分と奥の物置に出入りするドア。手前の湯沸かしスペースは2回目にご紹介した階段になります。

洗面所にリフォームする前のトイレ

今までの事務所棟のトイレ。洗面所にするにあたり0.75坪のため1坪に広くします。

トイレを解体して洗面所にリフォーム中

解体したリフォーム中の元のトイレ。この後、配管・配線を改修・処理します。

リフォーム後の洗面・洗濯・脱衣所

洗面・洗濯・脱衣所になったリフォーム後。この車椅子対応の洗面化粧台は元の住宅棟から移設しました。

リフォーム後の洗面・洗濯・脱衣所

左にあるドアは奥の物置の出入口です。

 このように内部を大幅に作り替えて洗面・洗濯・脱衣所を新設するリフォームも、リフォーム経験豊富な優れた腕の社員の大工や職人スタッフが揃っている、浜松市のリフォーム専門の工務店「優建築工房」なら、施工実績が豊富なため安心してお任せいただけます。お気軽にお問い合わせください。

お問い合わせは → こちら

その他の洗面所などのリフォーム施工事例はこちら

その他のリノベーション・大規模リフォームの施工事例はこちら

 

最終回 トイレの移設リフォーム

 浜松市東区の、社業を終了するのにあたり今までの住宅を解体して、事務所棟だった所を住宅棟に作り変える、リノベーション・大規模リフォームの最終回は今までトイレだった所を洗面・洗濯・脱衣所にするため、押入・廊下を作り変えて便所にする、トイレの移設リフォームのご紹介です。

移設リフォーム前の今までのトイレ

移設リフォーム前の今までの事務所棟のトイレ。

押入部をトイレにリフォーム中

押入と廊下の一部を解体してトイレ作り直すため先行配管が終わった、リフォーム中のトイレ。

廊下から見たリフォーム中のトイレ

廊下から見たトイレの出入口。左側の引戸が付いている所です。奥が洗面・洗濯・脱衣所。右に新しく付けた階段が見えます。

廊下から見たリフォーム後のトイレ

リフォーム後のトイレの出入口の3本引戸。車椅子でも出入りしやすいようにしています。

移設リフォーム後のトイレ

移設リフォーム後の0.75坪のトイレ。手洗器は元の住宅棟からの移設品です。

 このように場所を変えて便所を作り直す、トイレの移設リフォームも、リフォーム経験豊富な優れた腕の社員の大工や職人スタッフが揃っている、浜松市のリフォーム専門の工務店「優建築工房」なら、施工実績が豊富なため安心してお任せいただけます。お気軽にお問い合わせください。

お問い合わせは → こちら

その他のトイレのリフォーム施工事例はこちら

その他のリノベーション・大規模リフォームの施工事例はこちら

新着記事一覧

サイドメニュー

  • 業務内容

有限会社 優建築工房
〒432-8061 
静岡県浜松市中央区入野町286
(「しまむら」入野店の西側)
[営業時間]
8:00〜17:00
[TEL] 
053-445-2822